| 입찰법원 | 대전/서산지원 경매1계 | 입찰보증금 | (10%) 26,109,700 | 토지 | 489㎡ (147.9 평) |
| 사건번호 | 2024-54537 | 감정가 | 761,214,100 | 건물 | 340.99㎡ (103.1 평) |
| 물건번호 | 최저입찰가 | (34%) 261,097,000 | 제시외 | 144.5㎡ (43.7 평) | |
| 입찰일 | 2025.09.30 (화) | 청구액 | 500,000,000 | 물건용도 | 공장 |
| · 권리분석 , 예상 낙찰가 , 잔금대출, 명도 ,부실채권(NPL) 매입 상담 · 유치권, 법정지상권등 특수권리분석 상담 ☎ 02-453-7800 / 031-554-0114 |












| 감 정 평 가 내 역 | |
| 충남 태안군 근흥면 신진도리 527-9 1동 외1 | |
| -신진항북동측인근 -주위근린생활시설,단독주택등소재 -제반교통상황보통 -인근버스(정)소재 -대체로등고평탄한정방형토지 -북측및동측각노폭약6m내외도로접함 -상업용지 -소로3류(폭8m미만)(접합) 계획관리지역 주거개발진흥지구 지구단위계획구역 가축사육제한구역(130m일부제한(소/말사육불가)) 가축사육제한구역(1500m일부제한(돼지/개/닭/오리/메추리사육불가)) 중점경관관리구역(2016-03-10) 가축사육제한구역(300m일부제한(젖소/양/사슴사육불가)) 군용비행장소음대책구역제2종구역(소음대책제2종구역) <1동> -경량철골조기타지붕(경량철골조) -2종근린생활시설 -난방설비 <2동> -경량철골구조경량철골구조(판넬)지붕 |
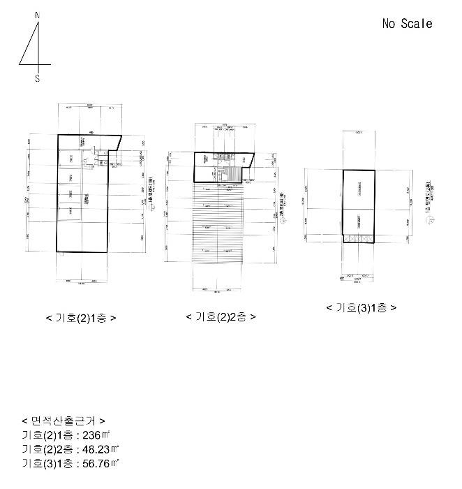
[1동] * 대지 489㎡ (147.92평) 상업기타(공업용)건부지 표준공시(㎡) 581,600 결정가(㎡) 945,000 결정가(평) 3,123,981 * 건물 1층 제조업소 200㎡ (60.5평) 1층 일반음식점 36㎡ (10.89평) 2층 사무소 48.23㎡ (14.59평) 현:숙소 * 제시외 작업장 144.5㎡ (43.71평),포함 골뱅이탈각기1식,호이스트1식소재(소재불명) [2동] * 건물 냉동창고,급속냉동창고 56.76㎡ (17.17평) ............ 토지감정 462,105,000 건물감정 237,853,820 제시외 61,255,280 합계 761,214,100 보존등기 2004-06-16 |
| 임차내역 | 진행내역 |
| (주)지*에스 사업 2020.08.19 보증 : 5,000,000 차임 : 900,000 198㎡ 전*수 사업 2023.08.01 보증 : 5,000,000 차임 : 450,000 63㎡ |
2025.01.21(화) 유찰 761,214,100 (100%) 2025.02.25(화) 유찰 532,850,000 (70%) 2025.04.01(화) 변경 372,995,000 (49%) 2025.05.13(화) 변경 372,995,000 (49%) 2025.08.26(화) 유찰 372,995,000 (49%) 2025.09.30(화) 진행 261,097,000 (34.3%) |
728x90
사업자 정보 표시
나이스옥션 | 정석근 | 서울특별시 강남구 테헤란로 151 역삼하이츠 13층 1316호 | 사업자 등록번호 : 132-18-81682 | TEL : 02-453-7800 | Mail : sukgc@naver.com | 통신판매신고번호 : 호 | 사이버몰의 이용약관 바로가기
'법원별 공장 경매 물건 > 대전지법' 카테고리의 다른 글
| 2024-8270 충남 금산군 복수면 다복리 169-5 외 공장경매 (0) | 2025.09.16 |
|---|---|
| 2023-108890 대전 동구 하소동 843 ,843-1 5동 외 공장경매 (0) | 2025.09.16 |
| 2023-52824 충남 당진시 고대면 옥현리 233-2 ,232-5,233-3 외 공장경매 (0) | 2025.09.16 |
| 2025-238 충남 홍성군 장곡면 가송리 305-1 공장경매 (0) | 2025.09.16 |
| 2024-3919 충남 보령시 주포면 관산리 560-1 공장경매 (0) | 2025.09.16 |