| 입찰법원 | 대전/천안지원 경매5계 | 입찰보증금 | (10%) 113,138,800 | 토지 | 3248㎡ (982.5 평) |
| 사건번호 | 2024-114792 | 감정가 | 1,616,269,000 | 건물 | 594㎡ (179.7 평) |
| 물건번호 | 최저입찰가 | (70%) 1,131,388,000 | 제시외 | ||
| 입찰일 | 2025.10.01 (수) | 청구액 | 998,257,160 | 물건용도 | 공장 |
| · 권리분석 , 예상 낙찰가 , 잔금대출, 명도 ,부실채권(NPL) 매입 상담 · 유치권, 법정지상권등 특수권리분석 상담 ☎ 02-453-7800 / 031-554-0114 |













| 감 정 평 가 내 역 | |
| 충남 천안시 동남구 목천읍 운전리 41-1 ,41-2 1동 외6 | |
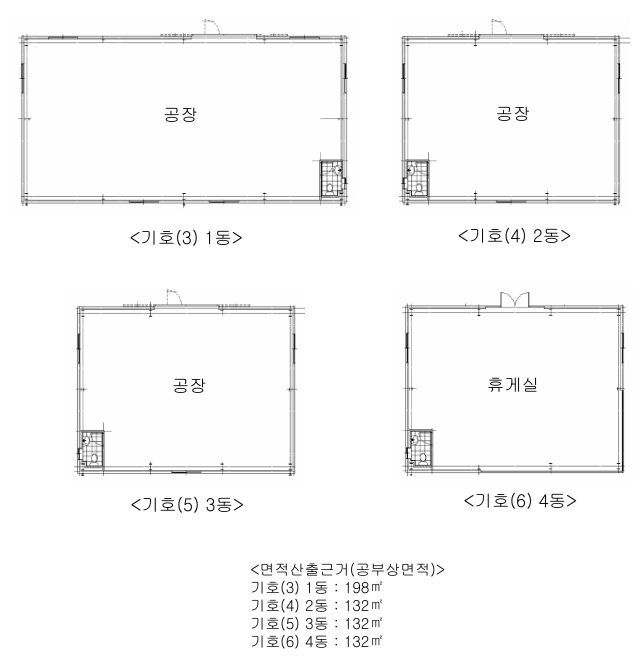
| -우정힐스CC동측인근 -부근소규모공장,농경지,근린시설등소재 -버스(정)인근소재 -제반교통사정보통 생산관리지역 공장설립승인지역(1호) 고속국도법상의접도구역(경부선) 가축사육제한구역(전부제한구역으로부터200m이내지역) <1동> -일반철골구조판넬지붕 <2동> -일반철골구조판넬지붕 <3동> -일반철골구조판넬지붕 <4동> -일반철골구조판넬지붕 <41-1> -2필일단부정형평지 -동측약5m도로접함 <41-2> -2필일단부정형평지 -동측약5m도로접함 <41-28> -부정형평지 -동측약5m도로접함 <41-29> -부정형완경사지 -북서측지적도상도로접함 -소하천(2023-08-01)(하천75) 소하천구역(2021-05-03)(이운전천) |
[41-1,41-2 1동] * 건물 공장 198㎡ (59.9평) 창고형공장 [2동] 공장 132㎡ (39.93평) 창고형공장 [3동] 공장 132㎡ (39.93평) 창고형공장 [4동] 공장 132㎡ (39.93평) 현:휴게실 [41-1] * 공장용지 726㎡ (219.61평) 현:건부지 표준공시(㎡) 123,200 결정가(㎡) 335,000 결정가(평) 1,107,443 옹벽포함 [41-2] * 공장용지 2386㎡ (721.76평) 현:건부지 표준공시(㎡) 123,200 결정가(㎡) 335,000 결정가(평) 1,107,443 [41-28] * 답 15㎡ (4.54평) 현:휴경지 표준공시(㎡) 86,400 결정가(㎡) 143,000 결정가(평) 472,729 농취증필요(매각결정기일까지미제출시보증금은반환하지않음) [41-29] * 답 121㎡ (36.6평) 현:휴경지 표준공시(㎡) 86,400 결정가(㎡) 98,000 결정가(평) 323,968 농취증필요(매각결정기일까지미제출시보증금은반환하지않음) ............. 토지감정 1,056,523,000 건물감정 559,746,000 합계 1,616,269,000 보존등기 2023-06-22 |
| 임차내역 | 진행내역 |
| 아*(주) 사업 2023.11.15 미상 민*지 사업 2024.01.22 보증 : 30,000,000 차임 : 2,800,000 미상 |
2025.08.27(수) 유찰 1,616,269,000 (100%) 2025.10.01(수) 진행 1,131,388,000 (70%) |
728x90
사업자 정보 표시
나이스옥션 | 정석근 | 서울특별시 강남구 테헤란로 151 역삼하이츠 13층 1316호 | 사업자 등록번호 : 132-18-81682 | TEL : 02-453-7800 | Mail : sukgc@naver.com | 통신판매신고번호 : 호 | 사이버몰의 이용약관 바로가기
'법원별 공장 경매 물건 > 대전지법' 카테고리의 다른 글
| 2023-2455 충남 부여군 은산면 가중리 556 1동 외 공장경매 (0) | 2025.09.29 |
|---|---|
| 2024-115504 충남 아산시 둔포면 염작리 87-2 외 공장경매 (0) | 2025.09.17 |
| 2023-107353 충남 아산시 신창면 창암리 123-15 외 공장경매 (0) | 2025.09.17 |
| 2023-2140 충남 당진시 석문면 통정리 1501 외 창고경매 (0) | 2025.09.17 |
| 2024-8270 충남 금산군 복수면 다복리 169-5 외 공장경매 (0) | 2025.09.16 |