| 입찰법원 | 청주/본원 경매1계 | 입찰보증금 | (10%) 206,288,400 | 토지 | 3304.6㎡ (999.6 평) |
| 사건번호 | 2025-50301 | 감정가 | 2,946,977,340 | 건물 | 2222.59㎡ (672.3 평) |
| 물건번호 | 최저입찰가 | (70%) 2,062,884,000 | 제시외 | 261.9㎡ (79.2 평) | |
| 입찰일 | 2025.08.12 (화) | 청구액 | 300,000,000 | 물건용도 | 공장 |
| · 권리분석 , 예상 낙찰가 , 잔금대출, 명도 ,부실채권(NPL) 매입 상담 · 유치권, 법정지상권등 특수권리분석 상담 ☎ 02-453-7800 / 031-554-0114 |







| 감 정 평 가 내 역 | |
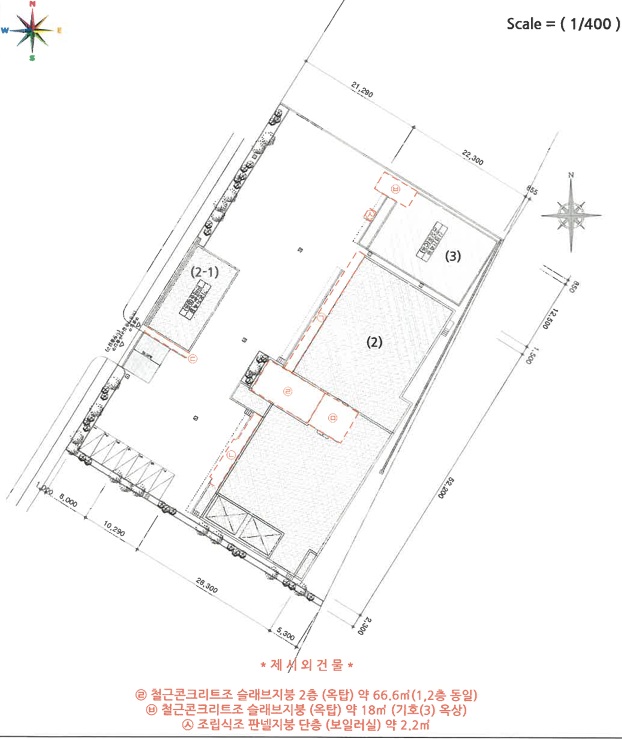
| 충북 청주시 청원구 오창읍 송대리 316-2 공장동 외1 | |
| -중부고속도로오창IC북동측 -부근산업단지 -버스(정)인근소재 -제반교통사정보통 -사다리형등고평탄지 -서측20m도로접함 -중로1류(폭20m~25m)(보조간선도로)(접합) -지방산업단지(오창과학산업단지) -연구개발특구(청주강소연구개발특구(연락처:청주시청투자유치과043-201-1473)) 도시지역 일반공업지역 가축사육제한구역(가축사육전부제한구역) 비행안전제6구역(전술)(비행안전제6구역해발고도로부터30m이내협의업무위탁2024.9.23) <공장동> <316-2> -철콘조철콘지붕 <판매동> -철콘조슬래브지붕 |
[공장동] * 공장용지 3304.6㎡ (999.64평) 표준공시(㎡) 262,000 결정가(㎡) 463,000 결정가(평) 1,530,585 * 건물 1층 공장 1106.09㎡ (334.59평) 작업장,냉동창고,공장등 2층 공장 495.6㎡ (149.92평) 사무실,숙소,식당등 * 제시외 공장 34.8㎡ (10.53평),포함 공장 25.5㎡ (7.71평),포함 계단실 9.6㎡ (2.9평),포함 1층 휴게실등 66.1㎡ (20평),포함 2층 물탱크실등 66.1㎡ (20평),포함 다용도실 39.6㎡ (11.98평),포함 계단실 18㎡ (5.44평),포함 보일러실 2.2㎡ (0.67평),포함 * 기계 수변전설비포함 소나무,회양목등20여주식재 [316-2] * 건물 1층 공장 255㎡ (77.14평) 작업장,냉동창고등 2층 공장 237.9㎡ (71.96평) 사무실,숙소,휴게실 [판매동] 공장 128㎡ (38.72평) 전시장,판매장 .............. 토지감정 1,530,029,800 건물감정 1,350,027,540 제시외 46,420,000 기계감정 6,500,000 수목감정 14,000,000 합계 2,946,977,340 보존등기 2001-09-28 |
| 임차내역 | 진행내역 |
| 유*에프앤비 전입 2022.10.07 미상 디*바이오 전입 2023.10.16 미상 |
2025.07.08(화) 유찰 2,946,977,340 (100%) 2025.08.12(화) 진행 2,062,884,000 (70%) |
728x90
사업자 정보 표시
나이스옥션 | 정석근 | 서울특별시 강남구 테헤란로 151 역삼하이츠 13층 1316호 | 사업자 등록번호 : 132-18-81682 | TEL : 02-453-7800 | Mail : sukgc@naver.com | 통신판매신고번호 : 호 | 사이버몰의 이용약관 바로가기
'법원별 공장 경매 물건 > 청주지법' 카테고리의 다른 글
| 2024-6253 충북 청주시 흥덕구 옥산면 가락리 823 ,823-1 외 식품공장경매 (3) | 2025.08.04 |
|---|---|
| 2024-5243 충북 증평군 도안면 노암리 917 식품공장경매 (2) | 2025.08.04 |
| 2023-59861 충북 증평군 증평읍 사곡리 80-5 외 공장경매 (1) | 2025.07.30 |
| 2023-56473 충북 증평군 증평읍 남차리 671 ,677-2,679 외 공장경매 (3) | 2025.07.30 |
| 2024-32682 충북 음성군 생극면 관성리 129 ,129-3 외 공장경매 (0) | 2025.07.29 |