| 입찰법원 | 청주/충주지원 경매2계 | 입찰보증금 | (10%) 121,059,700 | 토지 | 4507㎡ (1363.4 평) |
| 사건번호 | 2024-35698 | 감정가 | 1,513,246,490 | 건물 | 1803.67㎡ (545.6 평) |
| 물건번호 | 최저입찰가 | (80%) 1,210,597,000 | 제시외 | 464㎡ (140.4 평) | |
| 입찰일 | 2026.01.26 (월) | 청구액 | 81,818,285 | 물건용도 | 공장 |
| · 권리분석 , 예상 낙찰가 , 잔금대출, 명도 ,부실채권(NPL) 매입 상담 · 유치권, 법정지상권등 특수권리분석 상담 ☎ 02-453-7800 / 031-554-0114 |











| 감 정 평 가 내 역 | |
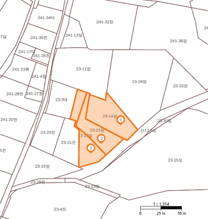
| 충북 음성군 대소면 태생리 23-14 ,23-22,23-23 외3 | |
| -태생3리마을회관북동측인근위치 -주위공장,주택,농경지등혼재 -인근간선도로소재 -제반교통사정보통 -3필일단부정형등고평탄지 -남동측5m도로소재 계획관리지역 성장관리계획구역(2024-03-15)(산업형) 가축사육제한구역(2025-05-30)(일부제한구역) <23-14> -철콘조및경량철골조스라브지붕 -본건건물은2024.11.1.일경건출물대장상위반건축물로표기되었으니응찰시주의요망 -2층:난방설비 <라동> -경량철골조강판지붕 -본건건물은2024.11.1.일경건출물대장상위반건축물로표기되었으니응찰시주의요망 <23-23> -철콘조및경량철골조스라브지붕 |
[23-14,23-22,23-23] * 건물 <가동>1층 공장 226.58㎡ (68.54평) <가동>1층 공장 206.25㎡ (62.39평) <가동>1층 공장 73.75㎡ (22.31평) <가동>2층 공장 304.12㎡ (92평) <가동>2층 공장 247.5㎡ (74.87평) <가동>지하1층 공장 317.34㎡ (96평) <가동>지하1층 공장 183.84㎡ (55.61평) <가동>지하1층 공장 31.5㎡ (9.53평) 공장,창고,사무실,숙소 <나동> 창고 65.07㎡ (19.68평) <다동> 물탱크실 22.72㎡ (6.87평) * 제시외 창고등 55㎡ (16.64평),포함 창고등 108㎡ (32.67평),포함 창고및가추등 79㎡ (23.9평),포함 창고등 6㎡ (1.82평),포함 창고,계사등 72㎡ (21.78평),제외 견사 12㎡ (3.63평),제외 창고등 72㎡ (21.78평),제외 창고등 48㎡ (14.52평),제외 견사 12㎡ (3.63평),제외 * 기계 기계기구(수전변설비)소재 수목1식식재 관정1식소재 [라동] * 건물 공장 125㎡ (37.81평) [23-14] * 공장용지 1891㎡ (572.03평) 표준공시(㎡) 116,500 결정가(㎡) 218,000 결정가(평) 720,664 입찰외제시외이동및철거용이한컨테이너소재 [23-22] * 공장용지 1308㎡ (395.67평) 표준공시(㎡) 116,500 결정가(㎡) 218,000 결정가(평) 720,664 [23-23] 1308㎡ (395.67평) 표준공시(㎡) 116,500 결정가(㎡) 218,000 결정가(평) 720,664 ............. 토지감정 982,526,000 건물감정 470,840,490 제시외 30,880,000 기계감정 20,000,000 수목감정 3,000,000 기타 6,000,000 합계 1,513,246,490 |
| 임차내역 | 진행내역 |
| 송*주 전입 2021.12.29 미상 |
2025.12.22(월) 유찰 1,513,246,490 (100%) 2026.01.26(월) 진행 1,210,597,000 (80%) |
728x90
사업자 정보 표시
나이스옥션 | 정석근 | 서울특별시 강남구 테헤란로 151 역삼하이츠 13층 1316호 | 사업자 등록번호 : 132-18-81682 | TEL : 02-453-7800 | Mail : sukgc@naver.com | 통신판매신고번호 : 호 | 사이버몰의 이용약관 바로가기
'법원별 공장 경매 물건 > 청주지법' 카테고리의 다른 글
| 2025-1750 충북 증평군 도안면 노암리 826-7 외 공장경매 (0) | 2026.01.22 |
|---|---|
| 2025-139 충북 보은군 내북면 성티리 198-1 1동호 외 공장경매 (0) | 2026.01.22 |
| 2024-35483 충북 음성군 대소면 삼정리 18 외 공장경매 (0) | 2026.01.12 |
| 2024-35049 충북 음성군 삼성면 양덕리 351-1 ,351-2,351-5 외 공장경매 (0) | 2026.01.12 |
| 2024-33401 충북 음성군 금왕읍 쌍봉리 22 ,23-1,23-2 외 공장경매 (0) | 2026.01.12 |